L-2C-45EX 4.5T ELECTRIC
Model No.: L-2C-45EX
Direct Drive Electric Lock Release
2 POST CAR LIFT L-2C-45EX 4.5T/10000LB
· 4500kg Capacity
· Double “S” Column Design
· Symmetric/Asymmetric Installation
· Symmetric Arms
· Clear Floor Type
· Dual Hydraulic Direct Drive Cylinder System
· Free 8-PC Pad Extension Kit(33mm/127mm)
· Automatic Arm Restraints
· Electric Lock Release
· Mounting Hardware Included
· Shipping Weight: 750kg.



· 4500kg Capacity
· Double “S” Column Design
· Symmetric/Asymmetric Installation
· Symmetric Arms
· Clear Floor Type
· Dual Hydraulic Direct Drive Cylinder System
· Free 8-PC Pad Extension Kit(33mm/127mm)
· Automatic Arm Restraints
· Electric Lock Release
· Mounting Hardware Included
· Shipping Weight: 750kg.



________________________________________________________________________________________________________________
Specifications:

Specifications:
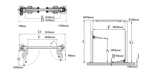
| Name | L-2C-45EX | |
| Lifting Method | Chain Drive | |
| Lock/Release System | Electric | |
| Lifting Capacity | 4500kg(9000lb) | |
| Lifting Height drop-in pad | A | 1850mm(72.8") |
| Pad Min.height drop-in pad | B | 90mm(3.5") |
| Height Overall | C | 3870mm(152.3") |
| Width Overall | D | 3530mm(140") |
| Drive Through | E | 2530mm(100")/2455mm(97”) |
| Width Between Columns | F | 2830mm(111.4") |
| Limit switch height | G | 3720mm(146.5”) |
| Arm Reach Front | H | 1250mm(49.2")) |
| Arm Reach Rear | I | 780mm(30.7") |
| Concrete Thickness | J | 150mm(5.9") |
| Lifting Time | 50s | |
| Motor Power | 2.2kw(3HP) | |

PARTS


________________________________________________________________________________________________________________
Manual


Click the image above to download the manual for L-2C-45EX
Ask our sales representitives for download password please. Thank you.
Manual


Click the image above to download the manual for L-2C-45EX
Ask our sales representitives for download password please. Thank you.
________________________________________________________________________________________________________________
Catalogue

Click here to download catalogue
Ask our sales representitives for download password please. Thank you.
Catalogue

Click here to download catalogue
Ask our sales representitives for download password please. Thank you.


























